Mckendy Street, Miramichi, New Brunswick

$173,000

Previous Next

About Mckendy Street

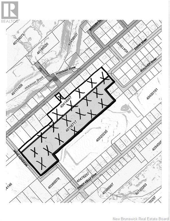
Incredible Investment Opportunity - Over 16 Acres of Prime Land! Looking for your next big investment? This stunning 16+ acre property has road frontage on Williston Rd, O'Shea Street, and McKendy Rd, placing it in a highly desirable location near one of the most sought-after subdivisions in Miramichi! Whether you're looking to develop, invest, or hold for future growth, this is a prime piece of real estate with endless potential! Its one of many parcels in the area, and weve got the map to show you the full picture. Have questions about the land, call the Planning Commission at 506-778-5359. Don't miss out on this golden opportunity! (id:6289)

Features of Mckendy Street

Listing # NB123630
Price $173,000
Type Vacant Land
Sub-Type Freehold

Community Information

Address Mckendy Street
City Miramichi
Province New Brunswick
Postal Code E1V5X7

Amenities

Is Waterfront No
Has Pool No

Interior

Fireplace No
Has Basement No

Listing Details

OfficeKeller Williams Capital Realty (M)

Listing Map

Request a Showing

Provide a valid email address.
When would you like to view this property?